19950190585
复式三连顶帐篷(尊跃SKY·别墅帐篷)

复式三连顶帐篷(尊跃SKY·别墅帐篷)

主材:氟碳漆防锈碳钢钢管
外膜:PVDF优质膜材
内膜:PVC
墙体:保温硬体墙+中空玻璃墙体
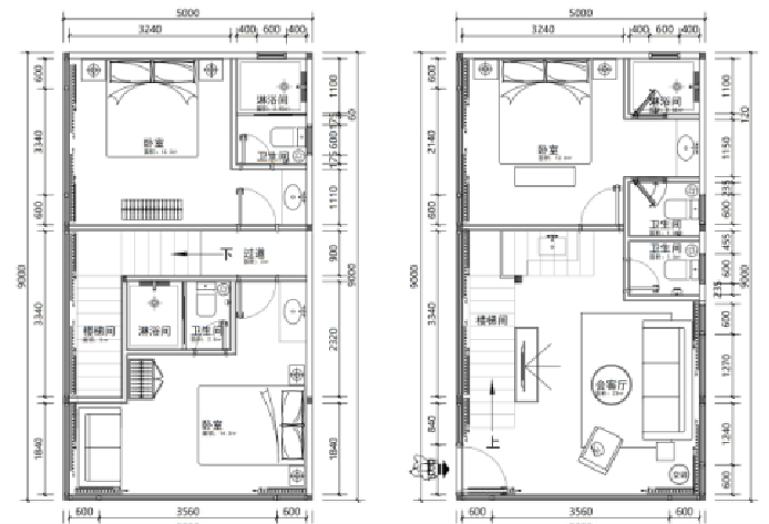
主体尺寸:5mx9mx2层
室内尺寸:4.88mx8.88m
外部高度:8.7m
内部高度:5.7m
室内面积:42.24㎡x2层(共计84.48㎡)
抗风等级:10级以下

产品咨询
产品介绍

复式三连顶帐篷(尊跃SKY·别墅帐篷)

复式三连顶帐篷(尊跃SKY·别墅帐篷)

复式三连顶帐篷(尊跃SKY·别墅帐篷)

复式三连顶帐篷(尊跃SKY·别墅帐篷)

产品咨询